Loading...

ქირავდება კომერციული ფართი

თბილისი / რამიშვილის ქ

  • 3
  • 230 კვ.მ 2

აღწერა

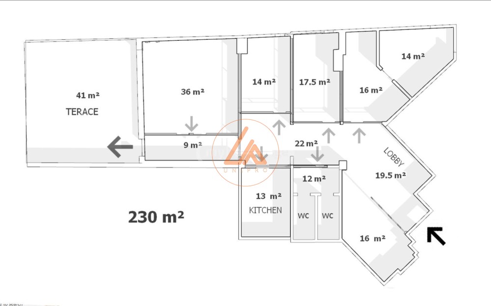
ქირავდება ახლად გარემონტებული ნათელი საოფისე ფართი ნინო რამიშვილის ქუჩაზე (მე3 სართული). ჯამური ფართი 230 კვ.მ. ოფისი გაშლილია დიდ ღია სივრცეში. ფართში შედის მისაღები ოთახი (ლობი), ექვსი სამუშაო ოთახი (მათ შორის შეხვედრების ოთახი), სამზარეულო და მთლიანი ტერასა მზიურის თავზე. ტერასა შეიძლება მოეწყოს დამატებით სამუშაო სივრცედ თბილ სეზონებზე. ტერასის გამოყენება ასევე შესაძლებელია ღონისძიებებისთვის. ფართს აქვს შესასვლელი როგორც ჭავჭავიძის ისე ჭაბუა ამირეჯიბის გზატკეცილის (ახალი გზა) მხრიდან, Cafe Paulის მიმდებარედ დეტალებზე დაგვიკავშირდით მითთებულ ნომერზე

დამატებითი პარამეტრები
  • ბუნებრივი აირი
  • სიგნალიზაცია
  • სამგზავრო ლიფტი
  • ინტერნეტი
  • კონდიციონერი
  • აივანი
  • წყალი
  • კანალიზაცია
  • ელექტროენერგია
  • ტელევიზია
  • ვერანდა

კომენტარები

მსგავსი განცხადებები

Top